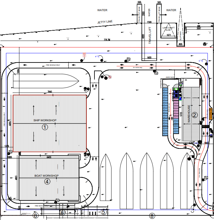
Our advanced shipyard spans over 45,000 sqm and is built to support large-scale construction, refitting, and marine innovation projects — delivering unmatched quality and turnaround time.
Comprehensive maritime solutions across all vessel types
1000 Ton Marine Travelift system with 7m draft capacity for vessels up to 130m+ in length.
Specialized teams for composite, aluminum & steel repair with state-of-the-art equipment.
Our engineers work alongside R&D to deliver alternative solutions and smart systems for real-world marine challenges.
Showcasing our expertise in large-scale maritime projects
Completed 2025Watch the complete Al Ghweifat Barge restoration and mobilization process
A flagship demonstration of our large-scale barge restoration and mobilization expertise.
From vision to reality — we built this shipyard ourselves
What sets us apart is that we didn't just design this shipyard — we built it ourselves. As both contractors and executors, we brought our vision to life from the ground up.
Every aspect carefully planned to maximize efficiency.
Our team handled every phase from foundation to final.
Continuously pushing the boundaries of what's possible.
Witness the journey of how we transformed a bold vision into a world-class maritime facility
Every epic story begins with a vision. Our journey started with comprehensive planning and detailed architectural drawings that would become the blueprint for maritime excellence.
From the ground up, we constructed the robust infrastructure and state-of-the-art jetty that would become the backbone of our maritime operations.
Warehouses, workshops, and cutting-edge equipment came together to bring our vision to life. Advanced systems and specialized technology for precision operations.
"Merging form and function to shape marine futures."
A showcase of what's possible when expertise meets ambition.
The story continues with advanced technologies and expanded capabilities. We're pushing the boundaries of what's possible in marine engineering.
Coming Soon
Our latest 1000 Ton Marine Travelift enables us to handle larger vessels with unprecedented efficiency.
Timelapse of our 1000 Ton Marine Travelift assembly
Commercial vessel maintenance and repair at scale
Reduced turnaround times for major projects
Increased capacity for simultaneous operations
"Where craftsmanship meets scale — shaping the future of marine engineering."
Take a virtual tour of our world-class facilities
Speak to our technical team and discover what's possible with our world-class shipyard facilities.
Contact Us